Всё о пентхаусах в Москва-Сити
Если вы хотите приобрести недвижимость в Москва-Сити, но апартаменты не до конца подходят вашему стилю жизни, удовлетворяют ваши запросы, присмотритесь к предложению в небоскрёбах – просторным многоуровневым пентхаусам.
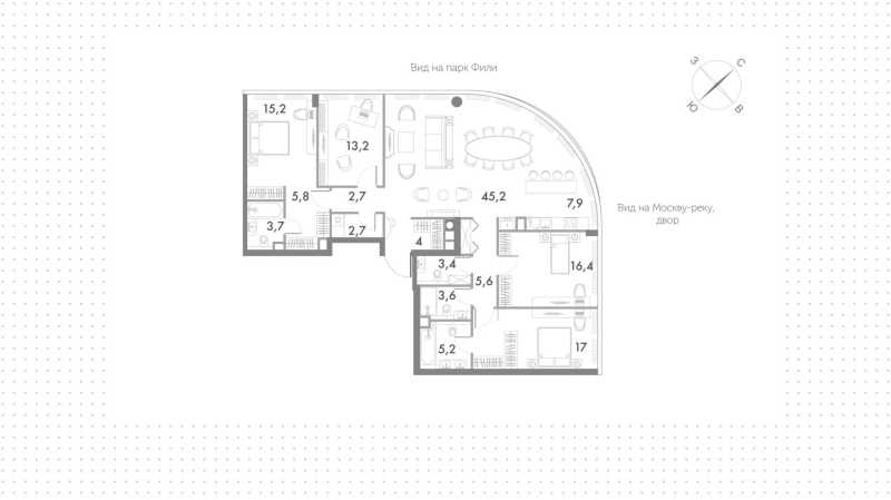
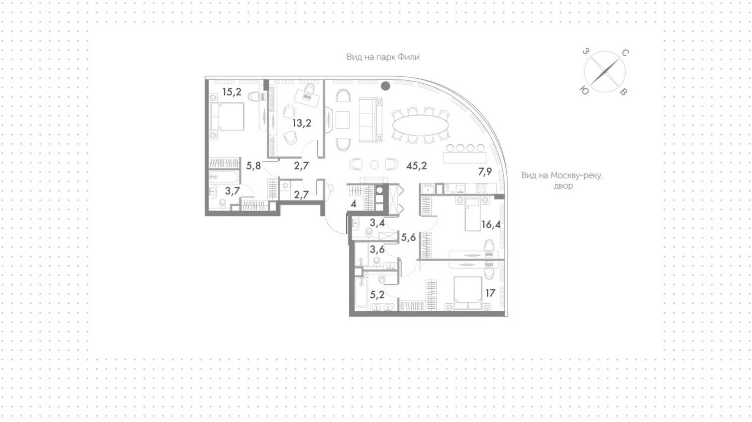
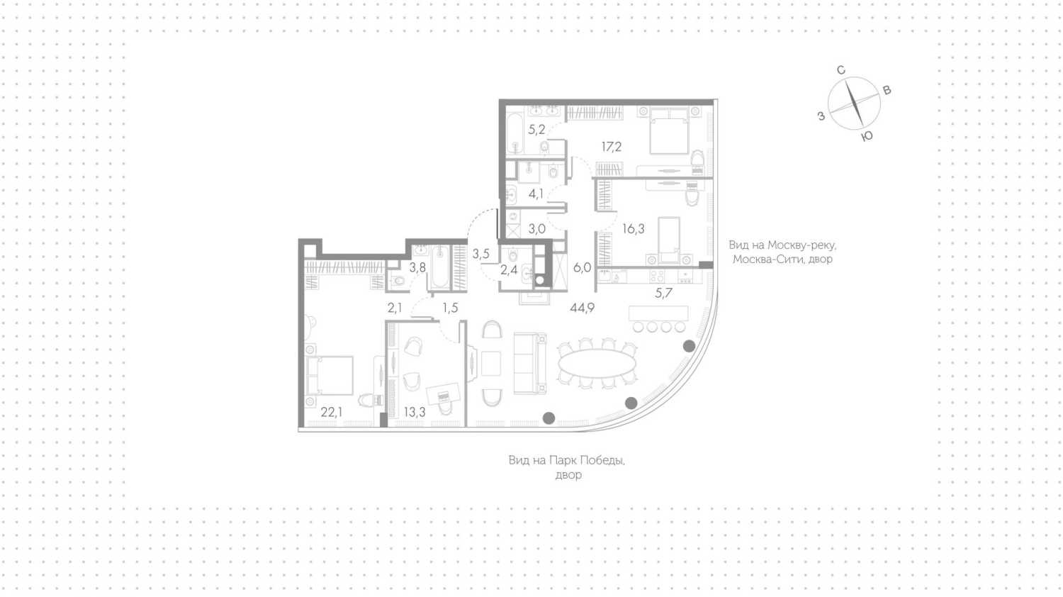
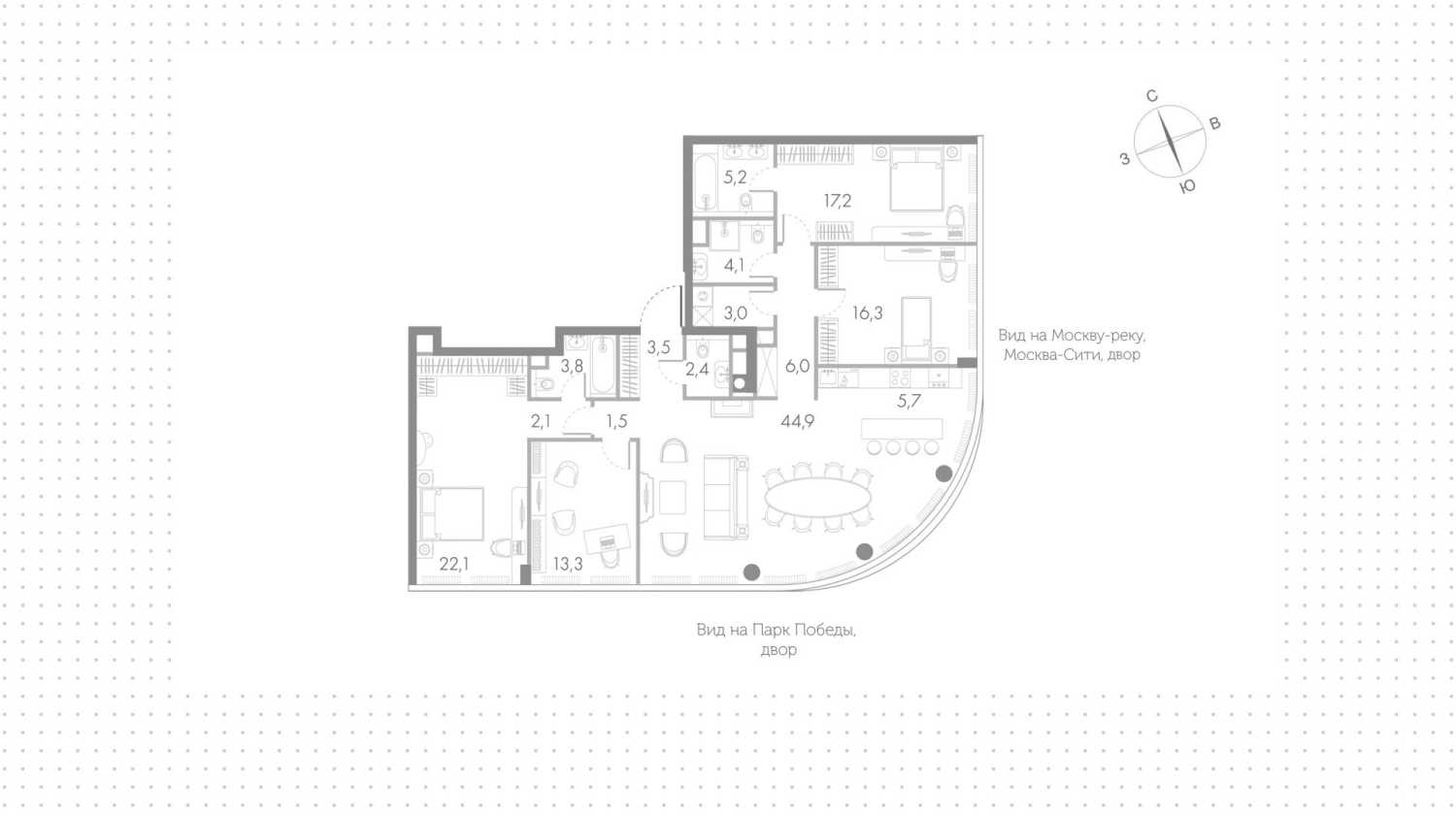
Вы можете купить пентхаус в Москва-Сити в башнях Neva Towers, «Империя», «Город Столиц» и не только. Можно подобрать как небольшой лот площадью 154 квадратных метра, так и просторный – более 1000 квадратных метров. Мы предлагаем пентхаусы без отделки, с готовыми интерьерами и в состоянии white box. Потолки – выше 4 метров в высоту. Из панорамных окон открываются потрясающие виды на набережную, Москву-реку и высотку МГУ.